Zum Hauptinhalt springen

NOE, noetop

EUR 450,00

incl. Tax, excl. Shipping

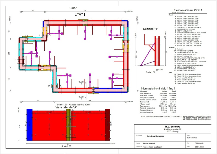
Formwork bearing for EuroSchal. You must now add a formwork programme wall full version or update.