Zum Hauptinhalt springen

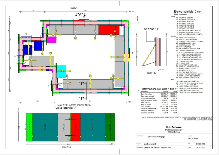
Mesa Imalat, Revola L cassaforma

EUR 450,00

senza tasse più la spedizione

Cuscinetto per casseforme per EuroSchal. Ora è necessario aggiungere un programma di casseforme per pareti versione completa o aggiornamento.